Kaum zu glauben, aber es gibt anscheinend im reichen Angebot der Modelltechnik doch noch eine Lücke zu entdecken, für die ein breiteres Interesse gegeben scheint: Modellyachten sind ein reines Sommervergnügen; im Winter hängen die Segel traurig an der Werkstattwand, denn "still ruht der See". Warum eigentlich? Warum kein Eissegeln wie bei den Großen? Die Besegelung und die Fernsteuerung sind schließlich schon vorhanden, es fehlt eigentlich nur der passende Kufenuntersatz.

Als die Idee entstand, war die "Eiszeit" schon angebrochen und alles sollte rasch gehen. Auf die Schnelle konnte der Autor keine Quelle über Modell-Eissegler ausfindig machen, also war eigener Entwurf und Erprobung angesagt. Die Konstruktion griff daher auf Reste in der Werkstatt zurück, der Bau erforderte ein Wochenende.
Nach der begeisternden Erprobung des Erstlings mit dem vorhandenen Swing Rig eines Trimarans folgte dann noch der Bau eines aus Teilen steckbaren Starrsegels, das für die hohen Geschwindigkeiten des Eissegelns prädestiniert ist. Die Namengebung orientierte sich dann an den eisigen Nordwinden »Boreas« und »Buran« (Bilder 1 und 2).
Konstruktion des Gleitgestells
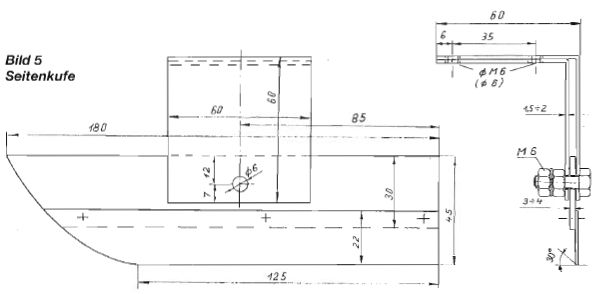
Die Gesamtanordnung ist aus der Übersichtszeichnung Bild 4 ersichtlich. Die Ausführung ist für Besegelungen von z.B. TRIANA, RUBIN, BUTTERFLY u.ä. gedacht. Für Segelflächen unter 0,5 m² kann die kürzere Länge des Kufenbalkens von etwa 1000 mm gewählt werden. Die Steuerkufe wurde zur höheren Kentersicherheit vorn angeordnet. Ein Rumpfbrett von etwa 20 mm Dicke (zweckmäßig Hartholz) ist am Heck durch zwei lösbare Schrauben mit dem Kufenbalken aus Alu-Hohlprofil 20 x 20 mm verbunden. Eine Holzausführung desselben sollte einen Querschnitt von mindestens 20 x 40 mm haben. Die Konstruktion der Kufenaufhängung ist den Bildern 4 und 6 zu entnehmen. Sie kann je nach vorhandenem Material modifiziert werden. So kann z. B. statt der angegebenen Winkel und Platten aus ca. 2 mm dickem Alu auch 1-mm Stahlblech verwendet werden, je nachdem was gerade zur Hand ist. Ein praktisches Halbzeug sind auch Brettwinkel 60 x 60 mm oder Alu-Winkel aus dem Baumarkt. Entsprechend können die Verbindungen genietet oder geschraubt werden. Bei aller Freiheit der Trägerausführung sollten jedoch die Kufenabmessungen ungefähr eingehalten werden. Wegen möglicher Unebenheiten und Fremdkörper auf dem Eis wird die Kufe kippbar ausgeführt. Sie besteht aus dem Gleitschuh (Alu, Stahl) und der als Laufschiene aufgeschraubten gehärteten Stahlkante. Dafür eignet sich hervorragend ein altes Metallsägeblatt, das nach Abschleifen der Zähne auf der Innenseite der Kufe schräg angeschliffen wird (ca. 30 Grad zur Laufebene, d.h. ca. 60 Grad Spitzenwinkel). Die Befestigungslöcher werden mit einem Hartmetallbohrer eingebracht.


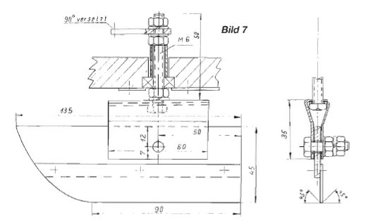
Die Konstruktion der Steuerkufe ist aus Bild 7 ersichtlich. Der symmetrische Kufenträger kann aus einem Blech gebogen werden oder wird aus zwei Winkeln zusammengesetzt (einfacher). Da bei hohen Geschwindigkeiten große Ruderkräfte auftreten, ist die 6-mm-Achse der Steuerkufe mit einem Kugellager im Rumpfbrett gelagert.

Das Aufnahmerohr für das Swing-Rig wird in eine örtliche Verstärkung des Rumpfbrettes eingeklebt, für eine Normal-Besegelung muss man an dieser Stelle den Mastfuß anbringen . In diesem Fall sind dann zusätzliche Ösen für Vorstag und/oder Fock auf dem Rumpfbrett und für die (verlängerten) Wanten auf dem Kufenbalken nötig. Der Autor zieht jedoch ein Swing-Rig vor, denn bei Minusgraden mit Wind und steifen Fingern ist schlecht takeln. Mancher wird das vielleicht zum Anlass nehmen, sich dieser Technik erstmalig zuzuwenden.
Für die Fernsteueranlage sind entsprechende Aussparungen im Rumpfbrett für Rudermaschine, Segelwinde und Akku angebracht. Der Akku sollte sicher befestigt sein (Klettband reicht nicht!), da bei den unvermeidlichen Stürzen bei hoher Geschwindigkeit große Kräfte auftreten. Hohe Festigkeit ist daher generell erforderlich, insbesondere für den Mast und die Takelung! Als Rudermaschine sollte eine etwas stärkere Ausführung mit 50 bis 70 Ncm zum Einsatz kommen. Als Segelwinde kann beim Einsatz eines Swing-Rigs wegen der geringeren Stellkräfte auch eine preisgünstige kleinere Ausführung verwendet werden (z.B. Hobbyland HS 725 oder Gröning HKS).
Die Kopplung des Ruderhebels mit der Rudermaschine erfolgt durch eine Fahrradspeiche für einen maximalen Ausschlag von etwa 30 Grad.
Als unabdingbar erwies sich Ballast, der auf der Unterseite des Rumpfes am Heck angeschraubt wird. Er wird aus Blei zweckmäßig z. B. in einer Konservendose gegossen. Seine Masse sollte etwa 1,5 kg oder - zur Anpassung an die Windverhältnisse - 2 x 1 kg betragen.
Wer noch Zeit und Nerven hat, kann natürlich auch eine schöne Rumpfverkleidung aus Rollglas anfertigen (dauert genauso lange wie der übrige Bau). Dazu wird der Bug und das Heckteil über einer Holzform heiß geformt, die Kegelteile vor und nach dem Mast elastisch gebogen und über seitlich aufgeklebte dünne Leisten am Rumpfbrett angeschraubt.
Konstruktion des Starrsegels
Das Starrsegel wurde nicht nur aus Transport- und Fertigungsgründen aus drei steckbaren Teilen hergestellt, sondern auch weil sich so durch Weglassen des MitteIteils ein Sturmsegel ergibt. Zur Profilierung wurde das Profil NACA 009 gemäß nachstehender Tabelle verwendet. Die Angaben beziehen sich auf eine Flügeltiefe von 350 mm.

Die Segelelemente wurden wie folgt angefertigt:
Die aus 3 bis 5 mm dickem Sperrholz geschnittenen Profile (für das Kopfprofil die Tabellenwerte mit 0,6 multiplizieren) werden seitlich auf eine passende Styrodurplatte (oder ähnliche Güte) geklebt, vorher sind die Bohrungen für die Versteifungsrohre in die Profile einzubringen. Das jeweilige Segment wird dann mit dem Hitzdraht ausgeschnitten, das Außenprofil des Kopfteils entfernt und der Kopf entsprechend verrundet. Das Durchbohren der Styrodurkerne erfordert etwas Sorgfalt. Als "Bohrer" verwendet man das Material der Versteifungsrohre zusammen mit einer einfachen Vorrichtung. Das etwa 80 cm lange Rohr wird mit der Säge und Feile wie ein Kronenbohrer geformt. Die Vorrichtung (Konduktor) besteht aus einem dünnen ca. 150 mm breiten Brett , an dessen Seiten zwei dünne Brettchen mit gegen überliegenden Bohrungen entsprechend den verwendeten Rohren befestigt sind. Entsprechend der Profilmittellinie sind die Bohrungen 15,8 mm über der Basis gelegen.
Für das Vorarbeiten von Bohrungen über 10 mm Durchmesser leistet eine konische Rundraspel gute Dienste, die Feinbearbeitung erfolgt mit dem vorgenannten Bohrkopf.
Die Vorrichtung wird an der Tischkante aufgespannt, der Bohrer eingelegt und in die Profilbohrung des daneben gelegten Segelteils eingeführt. Dieses wird in Verlängerung des Bohrers fluchtend ausgerichtet (Bleistiftmarkierung der Bohrungen auf den Randrippen), in der Höhe durch Beilagen fixiert und dann beschwert. Nun kann das Bohren im langsamen Gang erfolgen, eventuell von beiden Seiten, falls die Ausrichtung nicht stimmte. Die eingesetzten Versteifungsrohre werden mit den Rippen verklebt (Sekundenkleber).
Für die Rohre habe ich folgende Abmessungen verwendet:
- Unterteil - Hauptrohr: 16 x 2 mm (besser noch stärker wegen des hohen Segelschwerpunktes)
- Unterteil - Hilfsrohr: 10 x 1 mm, oben ca. 80 mm überstehend
- Im Hauptrohr wird oben ein Rohrstück 10 x 1 mm von etwa 200 mm Länge eingesetzt (mit Beilage), das oben etwa 100 mm übersteht.
- Mittelteil - Hauptrohr: 12 x 1 mm, oben ca. 150 mm Rohr 10 x 1 mm eingesetzt, ca. 90 mm überstehend
- Mittelteil - Hilfsrohr: dito, ca. 80 mm überstehend
- Kopfteil - beide Rohre 12 x 1 mm mit 100 m Länge.
(Anmerkung: Während Rohre von 10 und 12 mm Durchmesser aus Alu zum Sortiment der Baumärkte gehören, muß man sich bei größeren Durchmessern meist ausrangierten Campingmöbeln o.ä. zuwenden.)
Als Hinterkante klebt man eine Leiste 3 x 10 mm ein. Die fertigen Segelelemente werden verschliffen, eventuell verspachtelt und bespannt.
Wer mit der Schneidarbeit von Styrodur nicht vertraut ist, kann natürlich auch einen Flügel in klassischer Rippenbauweise bauen, die Berohrung sollte jedoch unbedingt beibehalten werden. Evtl. kann man ja auch auf die Hilfestellung durch einen befreundeten Flugmodellbauer zurückgreifen.
Erprobung
Zuerst noch einige allgemeine Betrachtungen: Ein Eissegler besitzt gegenüber einer Yacht bei gleicher Segelfläche nur einen Bruchteil des Fahrwiderstandes. Infolgedessen werden Fahrgeschwindigkeiten erreicht, die ein Mehrfaches der Windgeschwindigkeit betragen können. Der Unterschied zwischen scheinbarem und wahrem Wind wird daher wesentlich größer als bei einer Yacht. Aus den in Bild 9 dargestellten Verhältnissen zeigt sich auch, dass für den optimalen Anströmwinkel das Segel stärker angeholt werden muss. Die Praxis großer Eissegler zeigt, dass der Winkel des scheinbaren Windes zur Längsachse für einen Kurs am Wind und bei raumem Wind etwa 16 Grad beträgt, etwa 19 Grad sind es bei halbem Wind. Wenn die Startphase nicht wäre, könnte man einen Eissegler also praktisch ohne Segelwinde fahren! Bei diesen Verhältnissen am Segel ist ein langer, weithin sichtbarer Verklicker ein unbedingt notwendiges Zubehör.
Aus der hohen Anströmgeschwindigkeit und dem kleinen Anströmwinkel des Segels ergibt sich auch die Möglichkeit und Zweckmäßigkeit des Einsatzes eines Starrsegels mit relativ dünnem symmetrischem Profil.
Bevor es aufs Eis geht, sollte man sich der mahnenden Geschichte vom "Büblein auf dem Eis" erinnern, trotz aller Ungeduld mit dem fertigen Modell.
Der Autor mußte drei Wochen mit dem fertigen Gerät warten, denn das russische Hoch brachte zwar Dauerkälte, aber keine Luftbewegung. Doch dann ergaben bereits die ersten Erprobungen des Versuchsmusters bei nur schwachem Wind prinzipielle Erkenntnisse.
Wie bei den "Großen" waren die Kufen erst einmal festgefroren und mußten losgebrochen werden. Innerhalb weniger Meter beschleunigte der Segelschlitten rasant und es war faszinierend, am Verklicker die Richtung des scheinbaren Windes zu verfolgen - er drehte sich während des Beschleunigens um mehr als 90 Grad! Dann ging es in die erste Kurve. Die Seitenkufen scharrten kräftig und rutschten sogar seitlich weg. Der Segelschwerpunkt lag also zu weit hinten, der Kufenbalken war zu nahe am Mast befestigt. Die Kufen erwiesen sich als zu lang, daher das Scharren in der Kurve, das kräftig bremste. Eine Wende war damit nicht möglich, das Gerät blieb mit der Nase im Wind stehen.
Ein leichtes Auffrischen des Windes zeigte dann einen "umwerfenden" Erfolg : Bei halbem Wind stand der Segelschlitten sofort Kopf und der Mast war verbogen.
Trotz der Masse von ca. 3 kg und eines Kufenabstandes von 1150 mm war die Stabilität unbefriedigend.
Folgende Änderungen erwiesen sich als nötig:
- Verlagerung des Kufenbalkens um etwa 100 mm zum Heck ,
- Anbringen eines Ballastes von 1,5 kg am Heck,
- Verkürzung der Gleitfläche der Kufen.
Auf eine zweckmäßige Verlängerung des Kufenabstandes auf 1400 mm wurde vorerst verzichtet.
Mit diesen Änderungen konnte dann wirklich "scharf" gefahren werden, schon bei schwachem Wind fuhr er jedem Schlittschuhläufer davon. Bei Kurs mit raumem Wind bei etwa Stärke 3 zeigten grobe Messungen Geschwindigkeiten bis etwa 50 km/h, Das Fahren einer Wende blieb auch weiterhin kritisch, wenn es nicht mit ausreichender Fahrt eingeleitet wurde.
Durch die hohe Geschwindigkeit ist der Eissegler schnell weit weg. Wenn er dann in der Wende hängenbleibt, friert er meist an und ist nur selten durch Ruderwackeln freizubekommen. Wenn man dann mehrmals über den See geschliddert ist (und wieder zurück), bleibt man lieber bei der „Kuhwende" (Halse). Auch wenn das alles noch etwa so wie bei der gewohnten Segelyacht abläuft (bloß mehrfach schneller), so gibt es jedoch einen prinzipiellen Unterschied im Moment des Umwerfens (Kenterns). Bei raumem Wind werden zwar die höchsten Geschwindigkeiten erreicht, gleichzeitig kann aber bei einer kleinen Bö der Segelschlitten schnell die luvseitige Kufe heben. Ein Balancieren auf zwei Kufen sieht zwar toll aus, ist aber kaum durchzustehen. Bei den hohen Geschwindigkeiten ist ein Umwerfen dann häufig nicht ohne Folgen für das Gerät, für eine Segelbetätigung bleibt in dieser Situation keine Zeit. Eine schnelle Steuerreaktion ist daher erforderlich, allerdings nicht das gewohnte Anluven, sondern umgekehrt ein scharfes Wegdrehen nach Lee! Der angekippte Segelschlitten wird durch die Fliehkräfte in der scharfen Kurve wieder auf die Eisfläche gedrückt und fährt etwa rechtwinklig zum alten Kurs weiter. Bei fehlender Übung wird daraus allerdings häufig ein "Ringelpiez", d.h. er dreht sich um etwa 180 Grad und bleibt mit killenden Segeln stehen, aber ohne Bruch! Die Kufen mit den angegebenen Maßen wurden erfolgreich bis zu 5 cm Schneehöhe ausprobiert. Kippeinsätze für noch größere Schneehöhen müssen noch weiter hinten gelagert werden, da sie sich sonst leicht auf die Nase stellen können.
Für die Erprobung der Ausführung mit Starrsegel stand dann leider nur noch Tauwetter zur Verfügung. Das ursprünglich mit der gleichen Segelfläche von 0,62 m² des Swing-Rigs mit 400 mm Profillänge gebaute Starrsegel erwies sich als totale „Übermotorisierung" für den Kufenuntersatz mit nur 1150 mm Breite und nur geringem Ballast. Der wesentlich höher liegende Flächenschwerpunkt führte leicht zum Umkippen, so daß nur die Sturmvariante des Segels (ohne Mittelteil) gefahren werden konnte. Wenn das auch durchaus überzeugend verlief, so bleibt ein zuverlässiger Vergleich der Segeleigenschaften von Swing-Rig und Starrsegel bei gleicher Fläche doch der nächsten Eissaison vorbehalten. Für den Nachbau wird erst einmal eine kleinere Variante mit nur 350 mm Profillänge empfohlen.
Fazit
Modell-Eissegler sind eine attraktive Fortsetzung des Yachtsports im Winter. Ohne großen technischen Aufwand hat man ein rasantes Fahrvergnügen. Infolge der erforderlichen hohen Reaktionsgeschwindigkeit ist diese Sportvariante eigentlich gut für Wettbewerbe geeignet mit Geschicklichkeits und Geschwindigkeitskurs. Vielleicht findet sich ein Club , der diese Anregung in die Praxis umsetzt.
Original erschienen in der Zeitschrift Schiffsmodell des Neckar-Verlags 3/1998 Autor:Klaus Neumann. Sollten hiermit irgendwelche Rechte verletzt werden bitte melden. Ich werde dann den Artikel sofort entfernen.





